خدمة إعداد اسكتشات معمارية ورسومات تنفيذية احترافية

0 (0)

الوصف

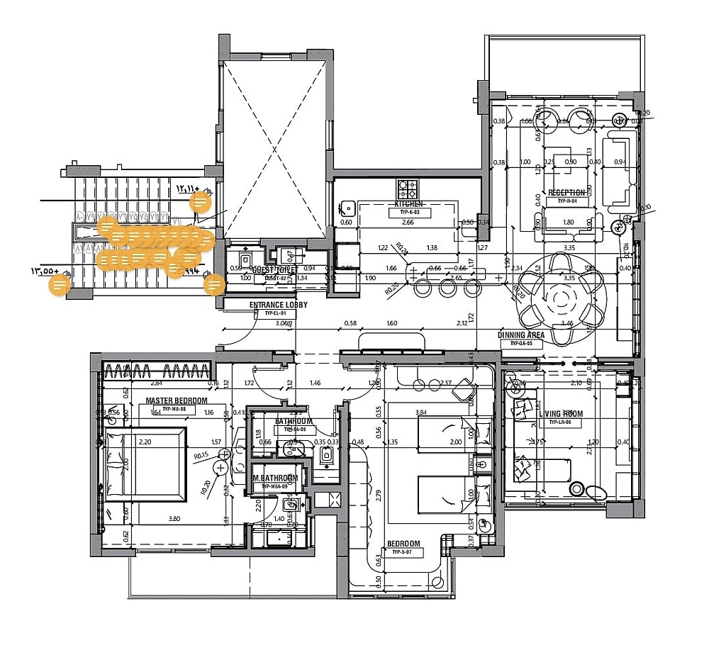
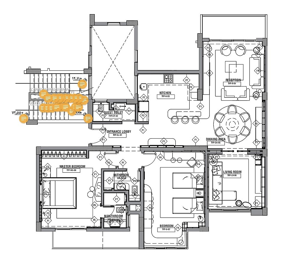
أقدّم لك خدمة إعداد اسكتشات معمارية دقيقة ورسومات تنفيذية احترافية تساعدك في توضيح الفكرة وتحويلها إلى مخططات جاهزة للتنفيذ على أرض الواقع.
أعمل على المشاريع السكنية والتجارية بمستوى عالٍ من الدقة والوضوح، مع مراعاة المعايير الهندسية واحتياجات موقع التنفيذ.

ماذا ستحصل عليه؟
اسكتشات معمارية واضحة توضح الفكرة العامة والتقسيمات.
رسومات تنفيذية (Working Drawings) جاهزة للتسليم للمقاول أو الموقع.
مخططات (مساقط – قطاعات – واجهات) حسب متطلبات المشروع.
أبعاد دقيقة وتوضيح المواد والعناصر الإنشائية والمعمارية.
تعديلات للوصول لأفضل نتيجة تلائم مشروعك.
ملفات بصيغ PDF وDWG عند الطلب.
هدف الخدمة: توفير مخططات دقيقة واحترافية تساعد في تنفيذ المشروع بدون أخطاء وتوضّح كل التفاصيل المطلوبة
سيتم تسليم ملف كامل يحتوي على لوح المعماري للوحدة بالإضافة للوحة الفرش ولوحة الاضائة ولوحة الأعمال الصحية

شراء الخدمة

المبلغ الكلي $150

البائع

معلومات

السعر $150
مدة التسليم 10 أيام
طلبات قيد التنفيذ 0
الطلبات المكتملة 0
العملاء 0
المبيعات $0

الخدمات المقترحه

Developed by Samer Zaki

All rights reserved © kaf 2025