تحويل ملف pdf به روسومات هندسية الي CAD اتةكاد

0 (0)

الوصف

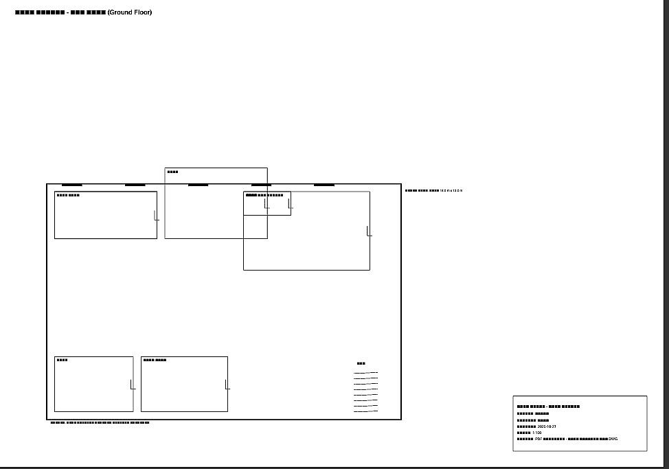
أقدم خدمة احترافية لتحويل ملفات PDF التي تحتوي على رسومات هندسية أو معمارية إلى ملف CAD بصيغة DWG أو DXF قابل للتعديل في AutoCAD.
ما ستحصل عليه:
تحويل ملف واحد PDF (صفحة واحدة) إلى ملف CAD بصيغة DWG أو DXF.
تنظيم الطبقات (Layers) كما في الرسم الأصلي.
ضبط وحدات القياس بشكل مناسب.
تسليم خلال [عدد الأيام] يوم(أيام).
تعديل واحد مجاني بعد التسليم إذا وُجد خطأ واضح.

شراء الخدمة

المبلغ الكلي $5

البائع

معلومات

السعر $5
مدة التسليم يوم
طلبات قيد التنفيذ 0
الطلبات المكتملة 0
العملاء 0
المبيعات $0

الخدمات المقترحه

Developed by Samer Zaki

All rights reserved © kaf 2025