رسم توسعت مصنع

منذ 9 أشهر

عرض العمل

الوصف

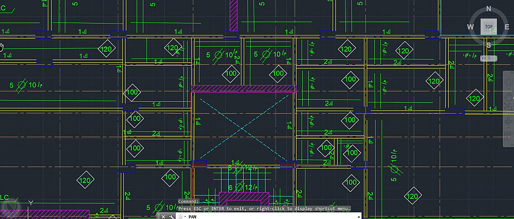
رسم مصنع قبل وبعد التوسعه لعميل ورسم لوحه انشاءيه لعميل اخر ورسم لوحه تصميم لسقف وتسليح للسقف


التفاصيل

المشاهدات 23
المفضلة 0
القسم تصميم - التصميم المعماري و الديكور

حساب المستخدم

Developed by Samer Zaki

All rights reserved © kaf 2026