رسم مخططات هندسية معمارية بصيغة أتوكاد

0 (0)

الوصف

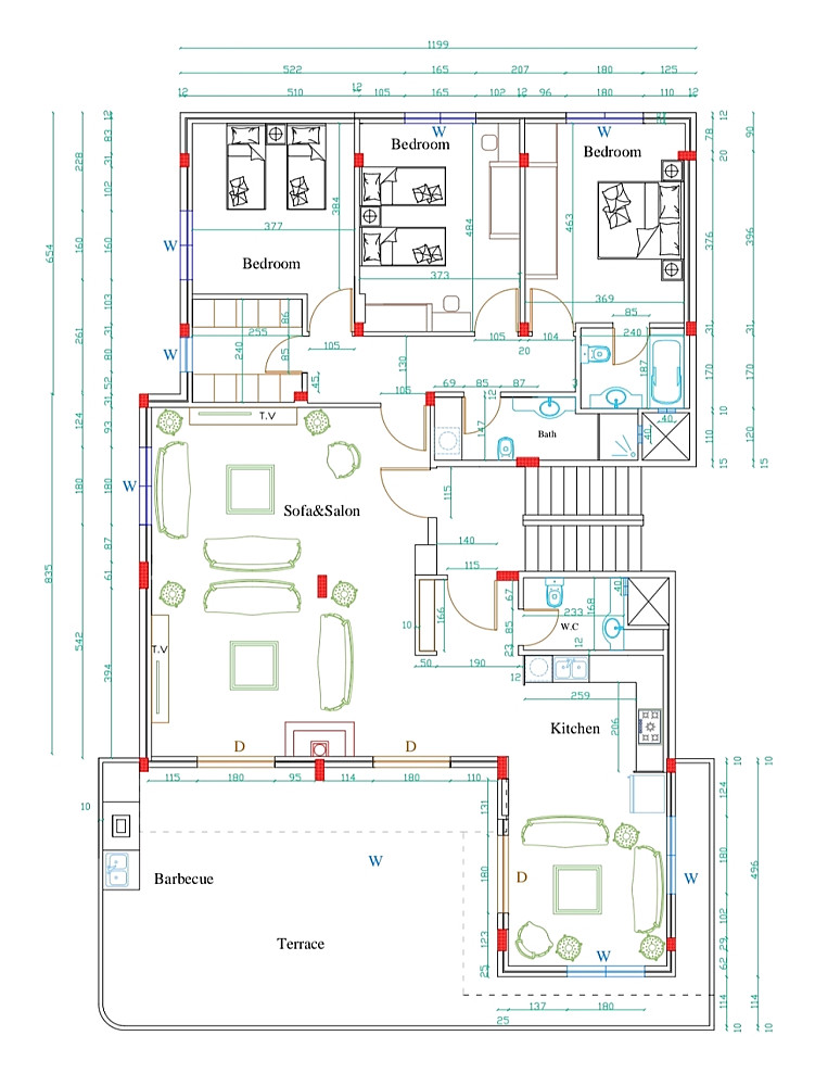
تحويل أي فكرة أو كروكي على الورق أو PDF إلى مخططات أوتوكاد واضحة واحترافية
فقط أرسل لي المعلومات التوضيحية مع الأبعاد وأماكن الأبواب والنوافذ وأماكن أي عمود أو جدار خرساني وأي تفصيل مهم وأنا أقدم لك مخطط هندسي متكامل مع الفرش المعماري
سعر الخدمة لكل 50 م2

شراء الخدمة

المبلغ الكلي 16

البائع

معلومات

الخصم %20
السعر $20 16
مدة التسليم يومين
طلبات قيد التنفيذ 0
الطلبات المكتملة 0
العملاء 0
المبيعات 0

الخدمات المقترحه

Powered By Brmja Tech

All rights reserved © kaf 2026