رسم تنفيذي كامل لمكتب متكامل

منذ 9 أشهر

عرض العمل

الوصف

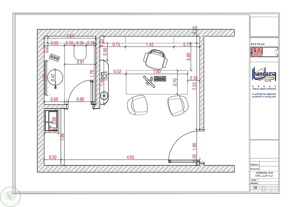
رسم تنفيذي كامل لمكتب متكامل يحتوي على حمام خاص وركن قهوة (كوفي كورنر) 🖤
قمت بإعداد المخططات التنفيذية بعناية لتوضيح توزيع الوظائف، خطوط الكهرباء، السباكة، التشطيبات، والأثاث، بما يضمن سهولة التنفيذ في الموقع.


التفاصيل

المشاهدات 1
المفضلة 0
القسم تصميم - التصميم المعماري و الديكور

حساب المستخدم

Powered By Brmja Tech

All rights reserved © kaf 2026